MODELE TINY HOUSE SKYWOOD : Confort & Mobilité

30m² de confort et d'élégance

30m²
2 chambres
6 personnes
Habitable

Une tiny house moderne et spacieuse, parfaite pour des vacances en famille ou comme résidence secondaire. Conçue avec des matériaux de qualité et un aménagement optimisé pour un confort maximal.

57 400€ Hors transport
Tiny House Skywood

Caractéristiques

30m²

Surface totale

2 chambres

Mezzanines confortables

6 personnes

Capacité d'accueil

Salle de bain

Avec douche et vasque

Cuisine équipée

Plaque, four, réfrigérateur

Confort moderne

VMC double flux, climatisation

Description détaillée

La Tiny House Skywood est l'incarnation parfaite du confort moderne dans un espace compact et fonctionnel. Avec ses 30m² intelligemment aménagés, cette tiny house offre tout le nécessaire pour des vacances en famille ou une résidence secondaire de qualité.

L'espace est organisé autour d'un séjour convivial avec canapé convertible, une cuisine entièrement équipée avec plaque vitrocéramique, four, réfrigérateur et hôte aspirante, et deux mezzanines spacieuses pouvant accueillir jusqu'à 6 personnes confortablement.

La salle de bain moderne avec douche et meuble vasque, l'escalier avec rangements intégrés, et les 8 ouvertures très lumineuses en aluminium gris anthracite créent une ambiance chaleureuse et fonctionnelle.

Spécifications techniques

Isolation et ventilation

  • VMC double flux et purificateur d'air
  • Pré-équipement climatisation
  • Isolation laine de roche 4 saisons
  • Isolation sol : 14 cm

Matériaux et finitions

  • Bardage extérieur en mélèze, épaisseur 22 mm
  • Bardage intérieur en mélèze, épaisseur 16 mm
  • Toiture bac acier gris anthracite
  • 8 ouvertures en aluminium gris anthracite

Structure et transport

  • Remorque double essieu de 8m sur 2,5m
  • Charge utile 3.5T en acier galvanisé
  • Surface totale de 30 m²
  • Superficie de 20 m² au sol

Plomberie et électricité

  • Tuyaux en polyéthylène réticulé PER
  • Évacuations PVC diamètre 50 et 100
  • Arrivée d'eau multicouche 16mm
  • Alimentation électrique 32A monophasée

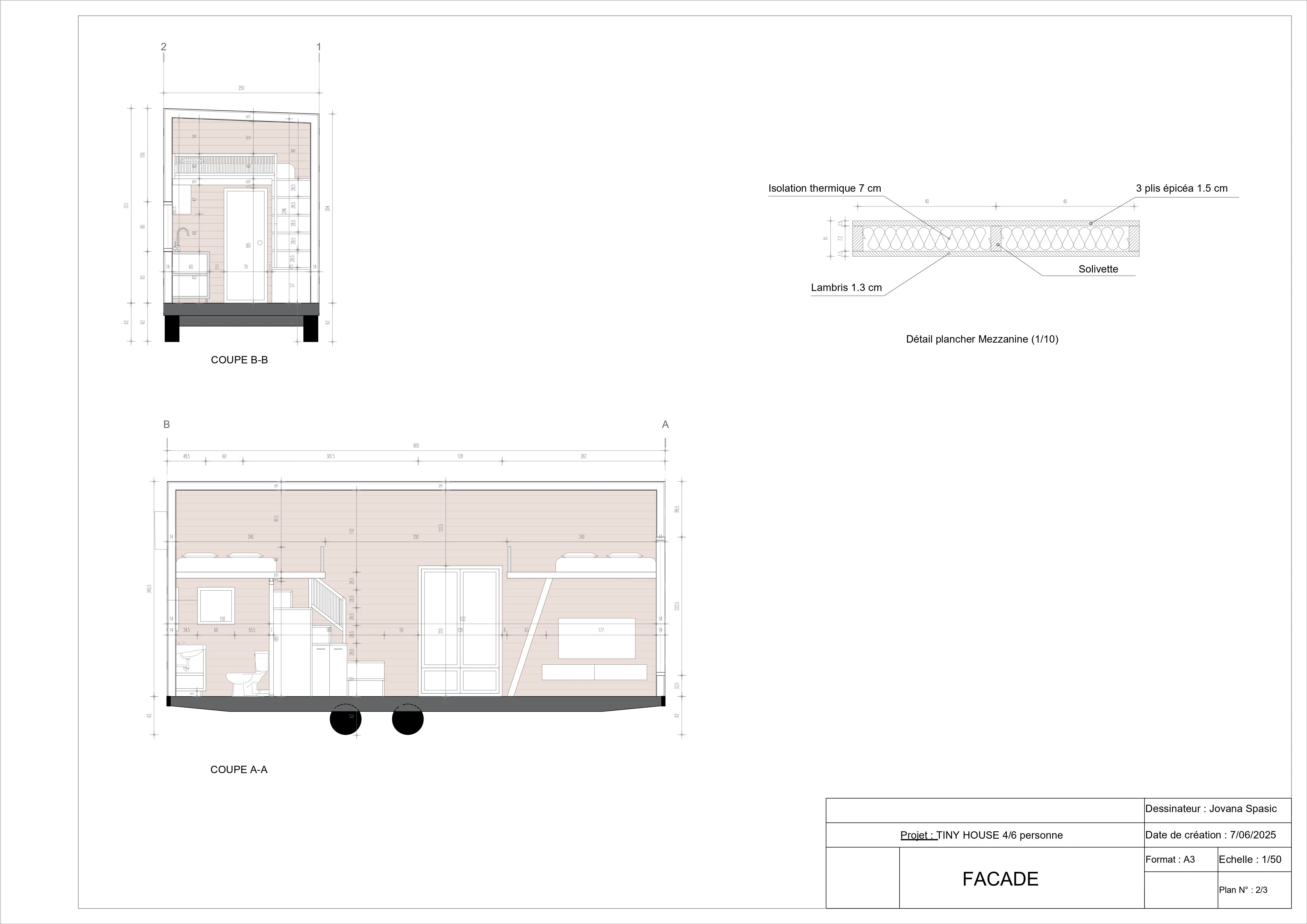
Plans et dimensions

Plan 1

Plan d'aménagement principal

Plan 2

Plan des mezzanines

Intéressé par la Tiny House Skywood ?

Contactez-nous pour plus d'informations ou pour planifier une visite

× Image zoomée